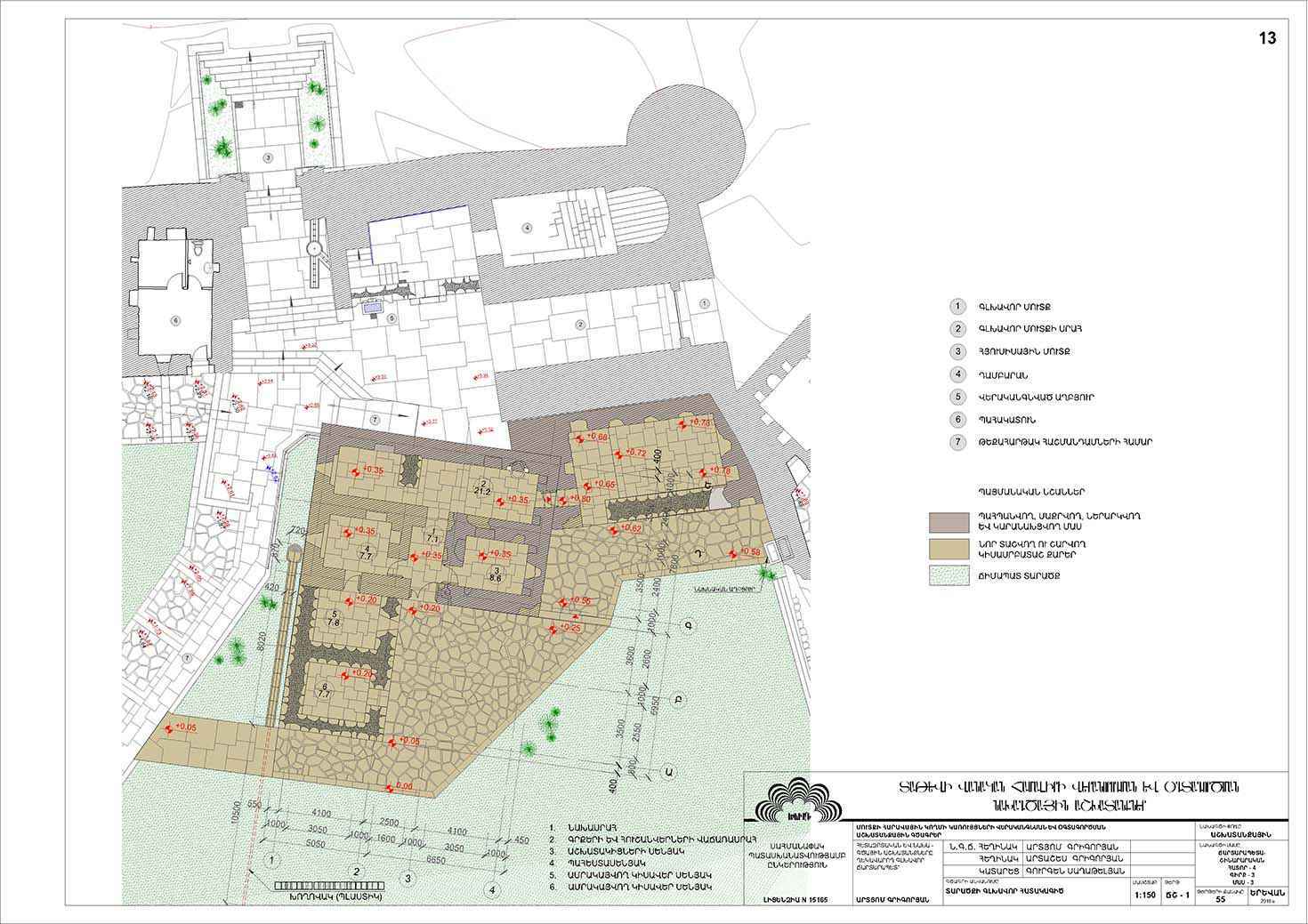
The Building on the South Side of the Entrance to the Tatev Monastery
The building is located 20m north of the Church of St Paul and St Peter, adjoining the southwest corner of the 12th century monastery entrance. No reliable information about the monument’s exact time of construction can be found. Judging by some of its features, the monument was presumably built between the ninth and 12thcenturies. According to historical information, in the building’s original form, a series of square rooms, measuring 2.5–3m wide, in a straight line reached the Church of St Paul and St Peter. It may be assumed that the building served as cells for monks or rooms for pilgrims. The building was severely damaged during a 1931 earthquake, after which no restoration work was carried out. Of the four rooms on the west side, only walls measuring 0.4–2.3 m high have currently been preserved. The two rooms on the east side are in a comparatively good condition, despite some damage to the vaulted ceilings. The building was constructed using local, rough basalt stones, which were connected using sand–lime mortar. In 1986, a project for the building’s restoration was developed but not implemented. Considering the results of comprehensive examinations of the building and based on the building’s present condition, this project proposes that
- a process involving the complete cleaning, grouting, dismantling and restoration of weakened masonry be carried out. Additionally, the water tightness of parts of the building that have survived to the present day to be ensured. After cleaning the vaults, thin-walled monolithic membranes and monolithic anti-seismic belts that span the walls’ entire length be applied;
- basalt blind areas and drains adjacent to the walls be applied to protect the walls from moisture;
- the missing stones in the masonry be added and the previously existing fireplace to be restored; and
- after the building’s restoration, the building to be used as an information point - a bookshop and a gift shop with storage and staff rooms. Electricity and water supply, as well as heating to be provided to the rooms.












