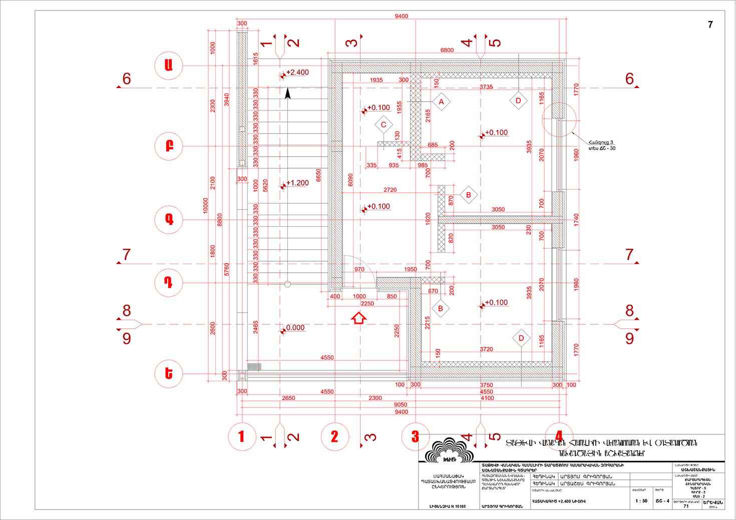
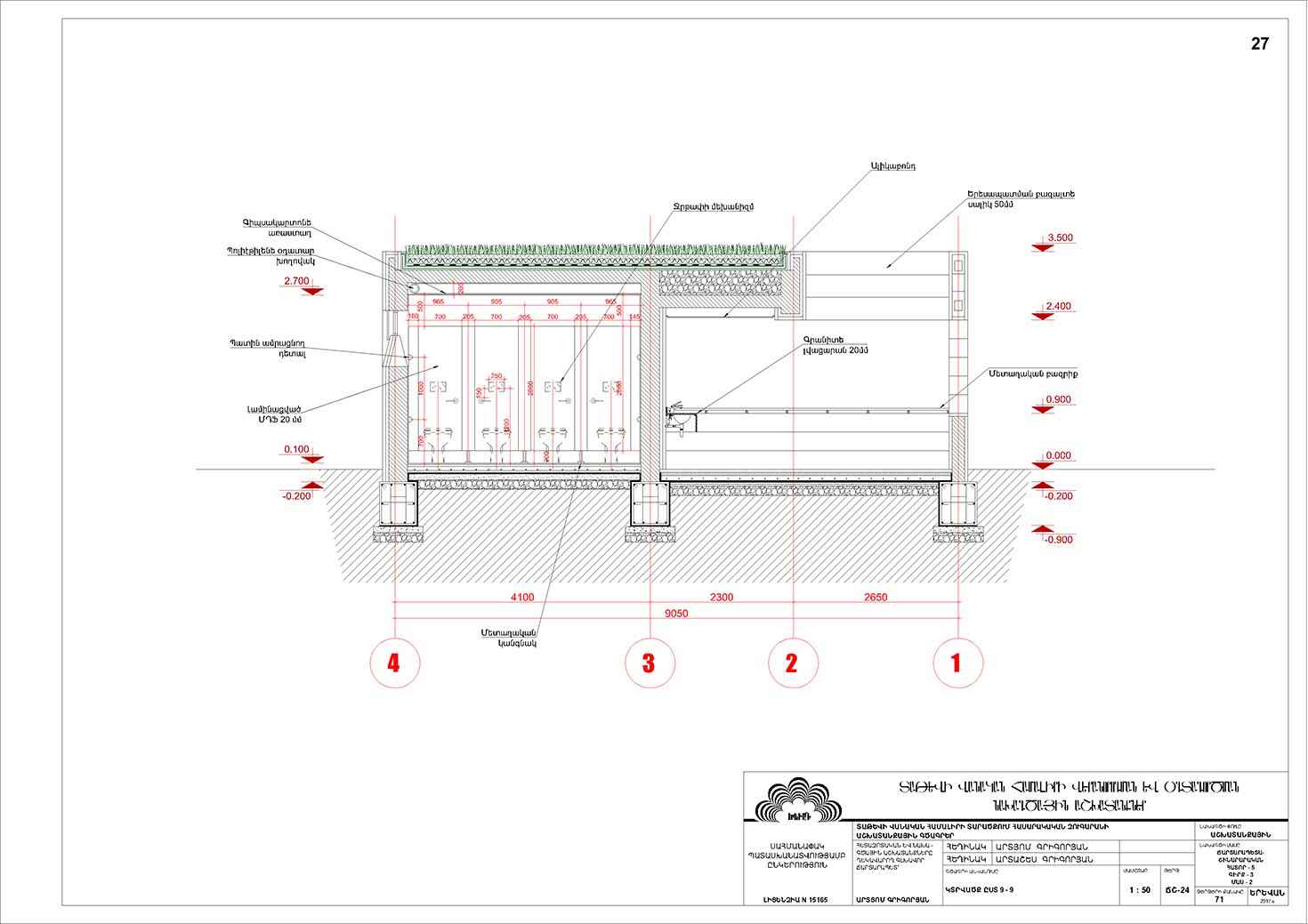
Tatev Monastery Toilet
The toilet is supposed to be positioned on the east side of the Tatev Monastery’s territory, on an inclined platform and on the edge of a cliff that vertically descends to the Vorotan River. The toilet’s volume is inscribed in the terrain. From the monastery’s territory, only its flat roof, which is 1 m above the ground, and the stairs leading to the toilet can be perceived. The toilet has sections for men and women, also having a section for the disabled. A cleaning well with a daily cleaning regime can be found next to the toilet.
open․․․











close